In the summer of 2012, I contributed with the role of project architect during the design and construction of a new hydroponic production plant for our client Next Vegetales. A branch of the Mexican company Grupo Altex, a big player in the national and international food industry.
The pressure was always on the main production building. The first challenge was to have ready the exterior box and concrete flooring ready to receive Europe’s (Hollands) machinery as soon as Mexican customs gave it clearance. Then, it was to have the building functioning to begin with the production tests on the scheduled date. To achieve this goals, we mixed our team with local and foreign contractors and specialists.
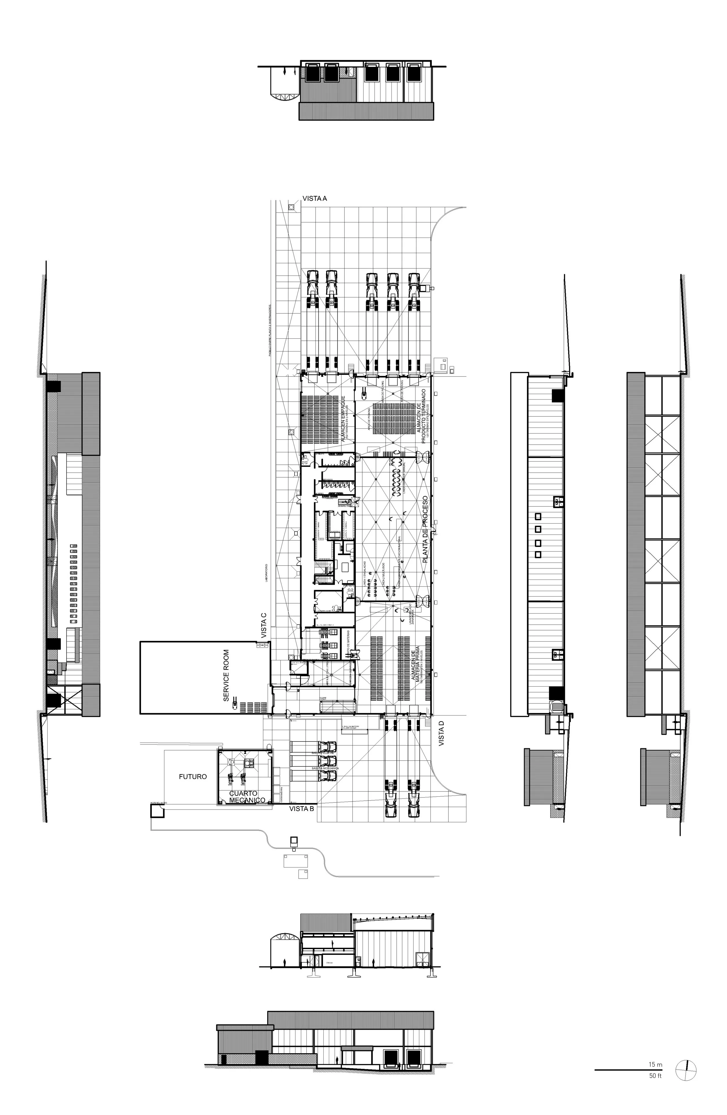
The project was completed in 27 months. The result was the construction of: 22,600 sq/ft of managing and production offices, 86,200 sq/ft for food processing activities, 250,000 sq/ft of greenhouse production, and 130,000 sq/ft of exterior landscape and recreation spaces.
Diagrammatically, the site works as a large scale container of programmatic boxes. Each box is placed inside of different building types, these were designed with the particular qualities which were demanded by the program it hosts.
The large and small scale organization commits almost entirely to a cartesian system. Inside of it the human scale is in close tension with other important variables of the design. Here the general system is capable of organizing the time and location of almost all the objects in the interplay, the people, information, activities, and products.
One of the things that I find of most interest in the project, is to look at it now that work is done and find that it has become another character in inside the social fabric. Just as in this promotional video, the building shows us that it performs a role inside the regional social narrative.
